Ferdinand Bolstraat, Amsterdam

Kenmerken

Verhuurd onder voorbehoud
Prijs
€ 2.495 p.m. ex.
Inrichting
partlyFurnished
Wijk
De Pijp
Locatie
In centrum
Postcode
1072 LN Amsterdam
Woningtype
Bovenwoning
Soort bouw
Bestaande bouw
Balkon
Ja
Kamers
2
Slaapkamers
1
Badkamers
1
Oppervlakte
79m²
Oplevering
Per direct

Download Brochure


Omschrijving

LET OP: Om in aanmerking te komen voor dit appartement verzoeken wij u vriendelijk uitsluitend een aanvraag te sturen via deze advertentie of per e-mail. Per telefoon kunnen wij geen bezichtiging inplannen.
Stuur ons svp een korte introductie (max. 3 zinnen) met daarin de volgende informatie:
- Aantal personen in het huishouden
- Naam van de werkegever en inkomensgegevens
- Leeftijd van de personen in het huishouden
Op basis hiervan wordt u wel of niet uitgenodigd voor de bezichtiging.

 

Heerlijke gedeeltelijk gemeubileerde 1 slaapkamer woning te huur midden in de Pijp geschikt voor een single of een stel. 

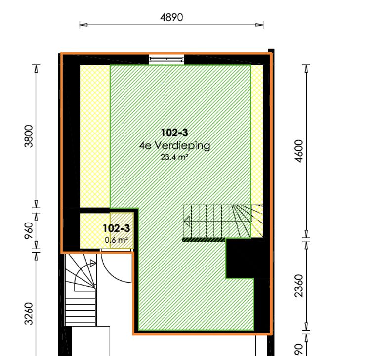
Indeling: Via een gemeenschappelijke ingang bereikt u de voordeur van de woning op de 3rde verdieping van de woning. Zeer ruime en lichte ruime woonkamer. De moderne open keuken is voorzien van diverse inbouwapparatuur (o.a. vaatwasser, koelkast met vriesvak, kookplaat, combi-oven/magnetron). Via een open trap in de woonkamer komt u op de vierde etage, hier bevindt zich de slaapkamer. Op deze verdieping is ook de moderne badkamer. Deze is voorzien van een inloopdouche, wasmachine en droger en wastafel. Vanuit de woonkamer heeft u toegang tot het balkon. Alle ramen van het appartement zijn voorzien van dubbel glas. 

De Ferdinand Bolstraat is gevuld met leuke winkels en koffietentjes. Populaire spots als Coffee&Coconuts en Auberge Jean-Marie zitten hier om de hoek, evenals mooie boetiek winkels als Anna&Nina, Duikelman en Oh My Bag. De halte van de Noord-Zuid lijn zit op de hoek van de straat en ook de tram is op loopafstand. Voor je dagelijkse boodschappen loop je zo naar de Albert Cuypmarkt en voor een kleine stadswandeling duik je het Sarphatipark in.

Kortom in de Pijp zal je je niet snel vervelen! 

Het meubilair en de stoffering blijven in de woning aanwezig; de verhuurder verstrekt hierop echter geen enkele garantie. In geval van defecten of schade zullen deze niet worden vervangen of gerepareerd.


Reageer

Deze woning is reeds verhuurd. U kunt uw woonwensen bij ons kenbaar maken, dan houden wij u op de hoogte van nieuwe woningen die wij in de verhuur krijgen.

Zoekopdracht

De zoekopdracht is op basis van no cure no pay.

Locatie

[ { "address": "Ferdinand Bolstraat 102", "zipCode": "1072 LN", "city": "Amsterdam", "lat": 52.3541722, "lng": 4.8908315, "heading": 0, "pitch": 0 } ]
[{"stylers":[{"saturation":-100},{"gamma":1}]},{"elementType":"labels.text.stroke","stylers":[{"visibility":"off"}]},{"featureType":"poi.business","elementType":"labels.text","stylers":[{"visibility":"off"}]},{"featureType":"poi.business","elementType":"labels.icon","stylers":[{"visibility":"off"}]},{"featureType":"poi.place_of_worship","elementType":"labels.text","stylers":[{"visibility":"off"}]},{"featureType":"poi.place_of_worship","elementType":"labels.icon","stylers":[{"visibility":"off"}]},{"featureType":"road","elementType":"geometry","stylers":[{"visibility":"simplified"}]},{"featureType":"water","stylers":[{"visibility":"on"},{"saturation":50},{"gamma":0},{"hue":"#50a5d1"}]},{"featureType":"administrative.neighborhood","elementType":"labels.text.fill","stylers":[{"color":"#333333"}]},{"featureType":"road.local","elementType":"labels.text","stylers":[{"weight":0.5},{"color":"#333333"}]},{"featureType":"transit.station","elementType":"labels.icon","stylers":[{"gamma":1},{"saturation":50}]}]